Harmony in Glow · Serene Residence
作品详情
  • Details of the work 标题横线
    头像或者logo
    图片 林川杰 FOCUS DESIGN设计平台特约推荐
    城市:成都市
    公司: 四川万境空灵装饰设计工程有限公司
    参赛作品: 和光同尘 · 颐居
    空间类型:别墅
    个人/公司简介:
    四川艺峰空间装饰、万境空灵装饰设计合伙人兼设计总监。拥有17年室内设计经验,秉持“以空间载情,用设计传心”的理念,已完成200余中高端私宅项目,并涵盖餐饮、民宿等多元商业空间设计。身为中国建筑学会室内设计分会高级会员、温江装饰协会设计师联合会副会长等行业职务,持续深耕专业,致力于创造情感与功能兼具的空间作品。
    设计说明 | Design Instruction
  • 设计说明 1、家庭画像 ·家庭结构:三世同堂,父母年迈,女主人已退休,男主人是做建筑工程,一个女儿在成都工作。 ·生活方式:家庭作息时间规整,女主人对此套房子需要有养老属性,家庭每位成员都养成良好的收纳习惯,需要做到分空间分区域进行对应收纳要求。 ·痛点诊断:原始户型楼梯间和厨房布局不合理,导致动线交叉;局部空间采光呈现暗区;空间狭窄不好使用。 2、空间设计策略 ·动静分区:公共区域与私密空间隔离,但每个区域又增设功能性转承空间。 ·收纳体系:根据业主需求,对全屋收纳量进行计算,按物品分类规划储物立方数。 ·人性化细节:结合阳光全年运行轨迹、朝向、风向,进行场景化联动思考。 3、美学表达体系 ·风格定位:木作质感打底+当下流行的中古元素+禅意的生活美学 ·色彩心理学:情绪引导,大地色系配色方案 ·材质搭配:通过粗糙、光滑、柔软材质配比,让视觉及触觉有多层次的感受。 4、深度思考 ·解决客户入住后舒适度的情况下,再考虑适老化家居设计,以“以人为本”为原则,旨在为退休后的养老生活营造便捷、舒适且安全居住环境。
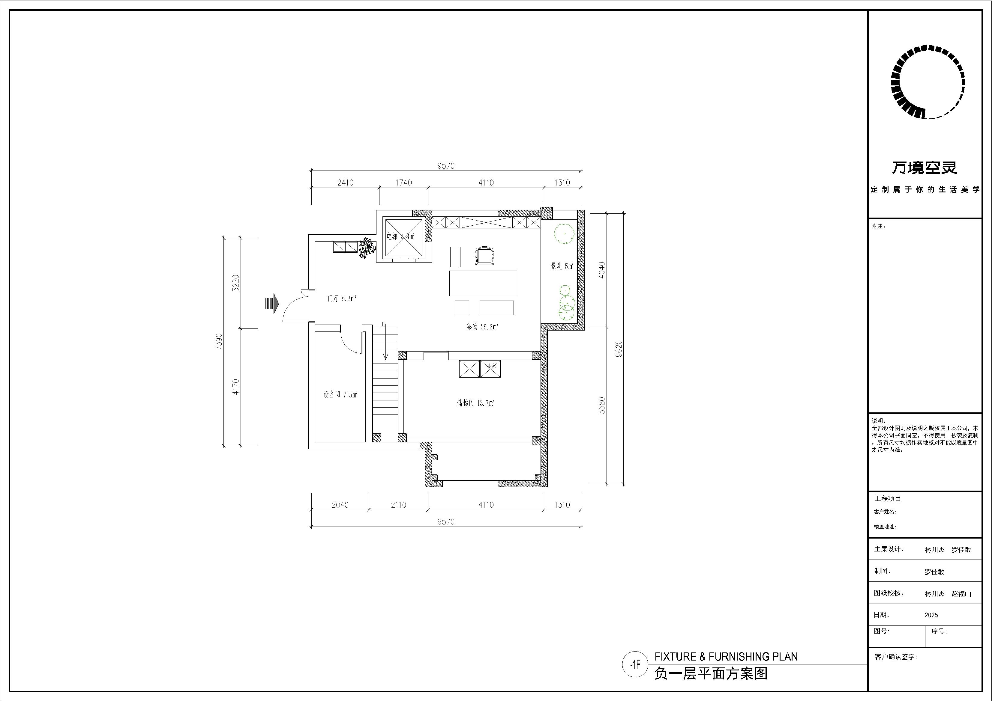
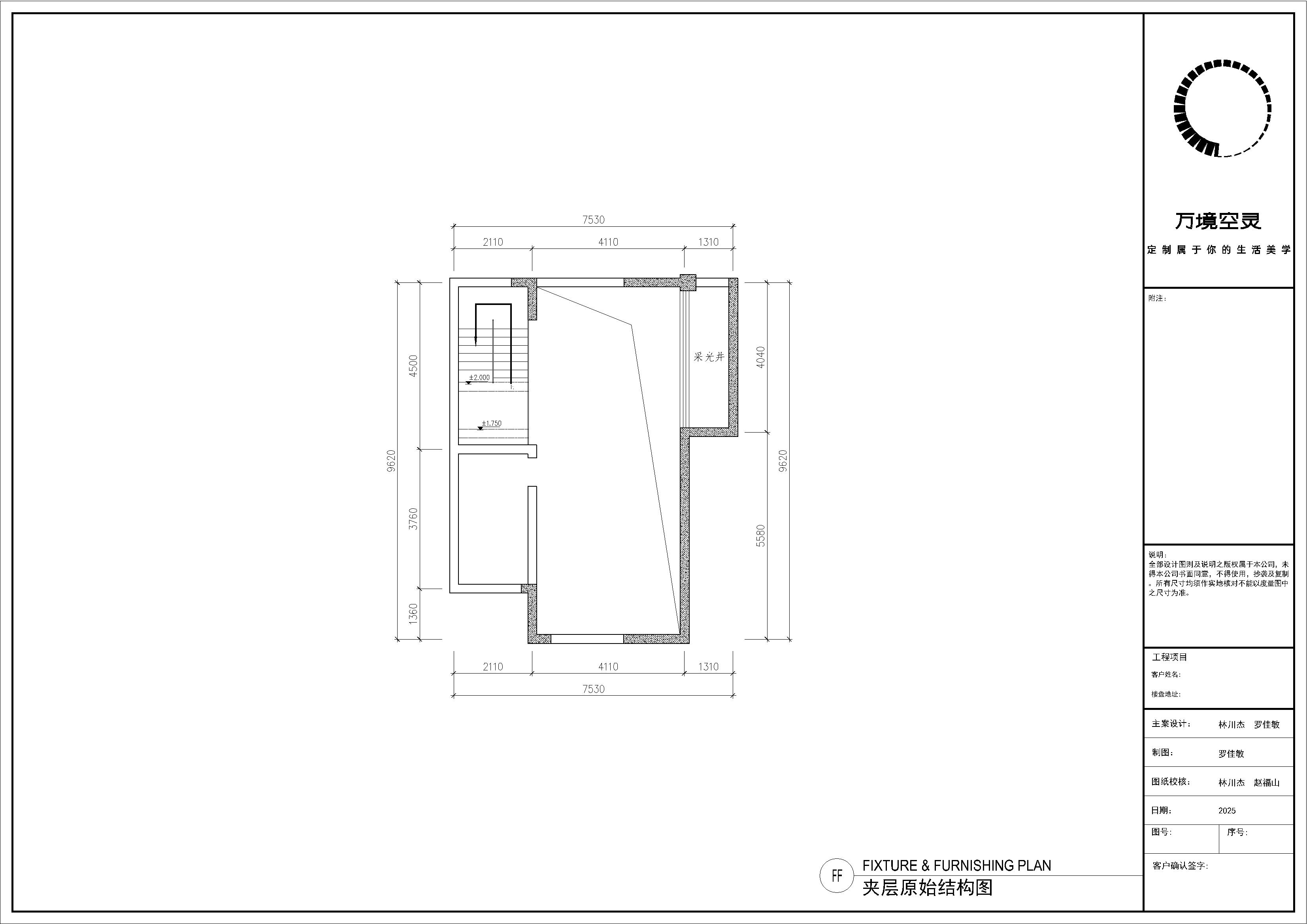
  • 图片
  • 图片
  • 图片
  • 图片
  • 图片
  • 图片
  • 图片
  • 图片
  • 图片
  • 图片
  • 图片
  • 图片
  • 图片
  • 图片
  • 图片
  • 图片
  • 图片
  • 图片
  • 图片
  • 图片
  • 图片
  • 图片
  • 图片
  • 图片
  • 上一个 下一个
    2025第九届金腾奖 私宅空间 | 旅居空间 | 城市功能空间 | 人气设计师 | NEW100 jintengAWARD(小金_金腾奖组委会) 广州市海珠区琶洲大道68号华新中心21楼
    金腾奖视频号 金腾奖小红书号 监制:余佳灵
    统筹:张俊媚
    运营:赖钰炼 曹凯月 刘芳棋 小金
    新媒体:王贝贝 严洁 张文一
    技术:丁德昌
    最终解释权归金腾奖主办方所有