Poetic dwelling under light and shadow
作品详情
  • Details of the work 标题横线
    头像或者logo
    图片 关升亮
    城市:佛山市
    公司: 佛山市亮道装饰设计工程有限公司
    参赛作品: 光影之下的诗意栖居
    空间类型:别墅
    个人/公司简介:
    关升亮作为LD.D亮道设计的董事及首席设计师,毕业于重庆建筑大学建筑城规学院室内设计专业,迄今已从事室内专业设计30年,一直致力于设计价值的挖掘和设计品质的完善。其设计追求人、空间、自然的和谐共生,当代,极简,东方,崇尚自然的设计风格。关升亮作为本土知名的室内设计师,目前是中国建筑学会室内设计分会会员和全国理事,佛山环境设计协会常务副会长,顺德室内设计师协会常务副会长,至今共获得设计类荣誉奖项超过一百项。
    设计说明 | Design Instruction
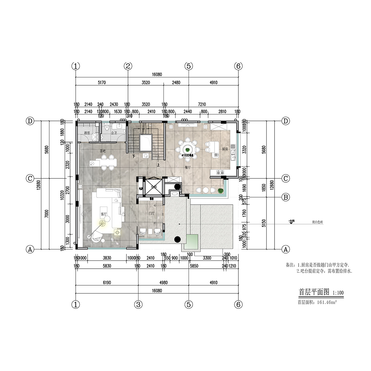
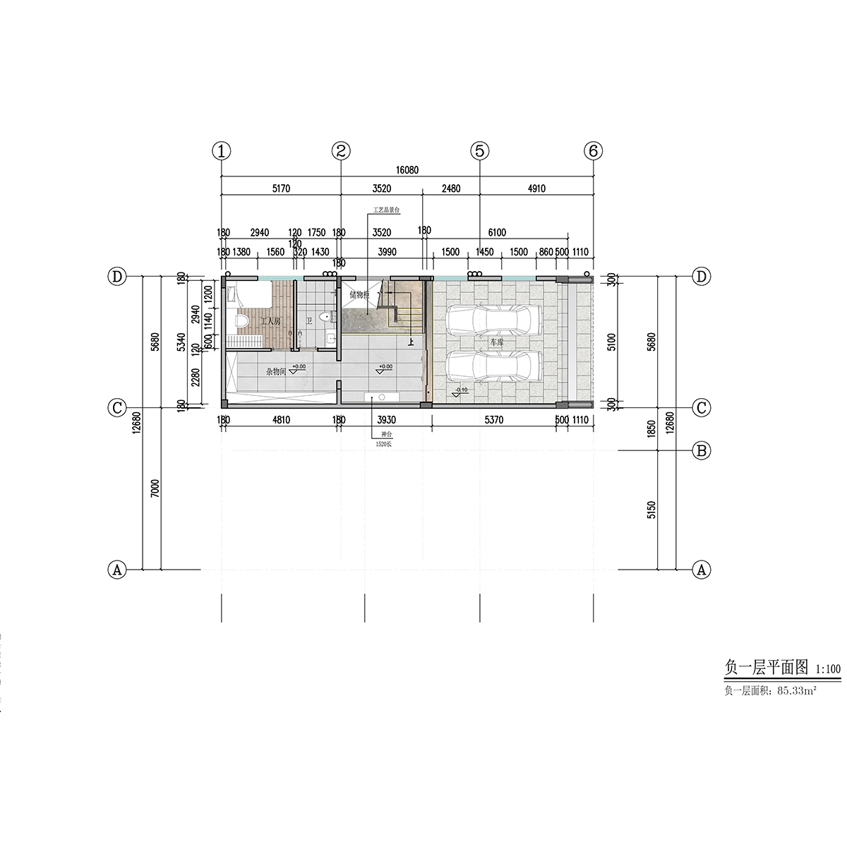
  • 原建筑是一栋20年普通欧式民宅,设计师为房子重新规划了居住的方式与空间的秩序,将当代诗意的生活方式注入空间。当房子重新以一种现代简约的风格呈现出来时,业主非常惊讶与喜欢。整个房子的布局呈内向L形平面规划,环抱着东南向的花园空间,室内空间也是面向东南面的花园一一打开,L形的两端是客厅公区与开放式的餐厨空间,L形的动线交接处是一个多功能的现代茶区。形体.光线.景观与内部空间相互咬合,充分地反映了设计师追求人与空间.自然和谐对话共生的诗意居住理念。设计师为业主构筑了一种全新的生活模式与现代居住空间 ,自由.当代.灵动,自然光影与诗意,空间与生活在此互相辉映,和谐共存。
  • 图片
  • 图片
  • 图片
  • 图片
  • 图片
  • 图片
  • 图片
  • 图片
  • 图片
  • 图片
  • 图片
  • 图片
  • 图片
  • 图片
  • 图片
  • 图片
  • 图片
  • 图片
  • 图片
  • 图片
  • 图片
  • 图片
  • 图片
  • 图片
  • 图片
  • 上一个 下一个
    2025第九届金腾奖 私宅空间 | 旅居空间 | 城市功能空间 | 人气设计师 | NEW100 jintengAWARD(小金_金腾奖组委会) 广州市海珠区琶洲大道68号华新中心21楼
    金腾奖视频号 金腾奖小红书号 监制:余佳灵
    统筹:张俊媚
    运营:赖钰炼 曹凯月 刘芳棋 小金
    新媒体:王贝贝 严洁 张文一
    技术:丁德昌
    最终解释权归金腾奖主办方所有