Guanyun
作品详情
  • Details of the work 标题横线
    头像或者logo
    图片 关升亮
    城市:佛山市
    公司: 佛山市亮道装饰设计工程有限公司
    参赛作品: 观云
    空间类型:办公
    个人/公司简介:
    关升亮作为LD.D亮道设计的董事及首席设计师,毕业于重庆建筑大学建筑城规学院室内设计专业,迄今已从事室内专业设计30年,一直致力于设计价值的挖掘和设计品质的完善。其设计追求人、空间、自然的和谐共生,当代,极简,东方,崇尚自然的设计风格。关升亮作为本土知名的室内设计师,目前是中国建筑学会室内设计分会会员和全国理事,佛山环境设计协会常务副会长,顺德室内设计师协会常务副会长,至今共获得设计类荣誉奖项超过一百项。
    设计说明 | Design Instruction
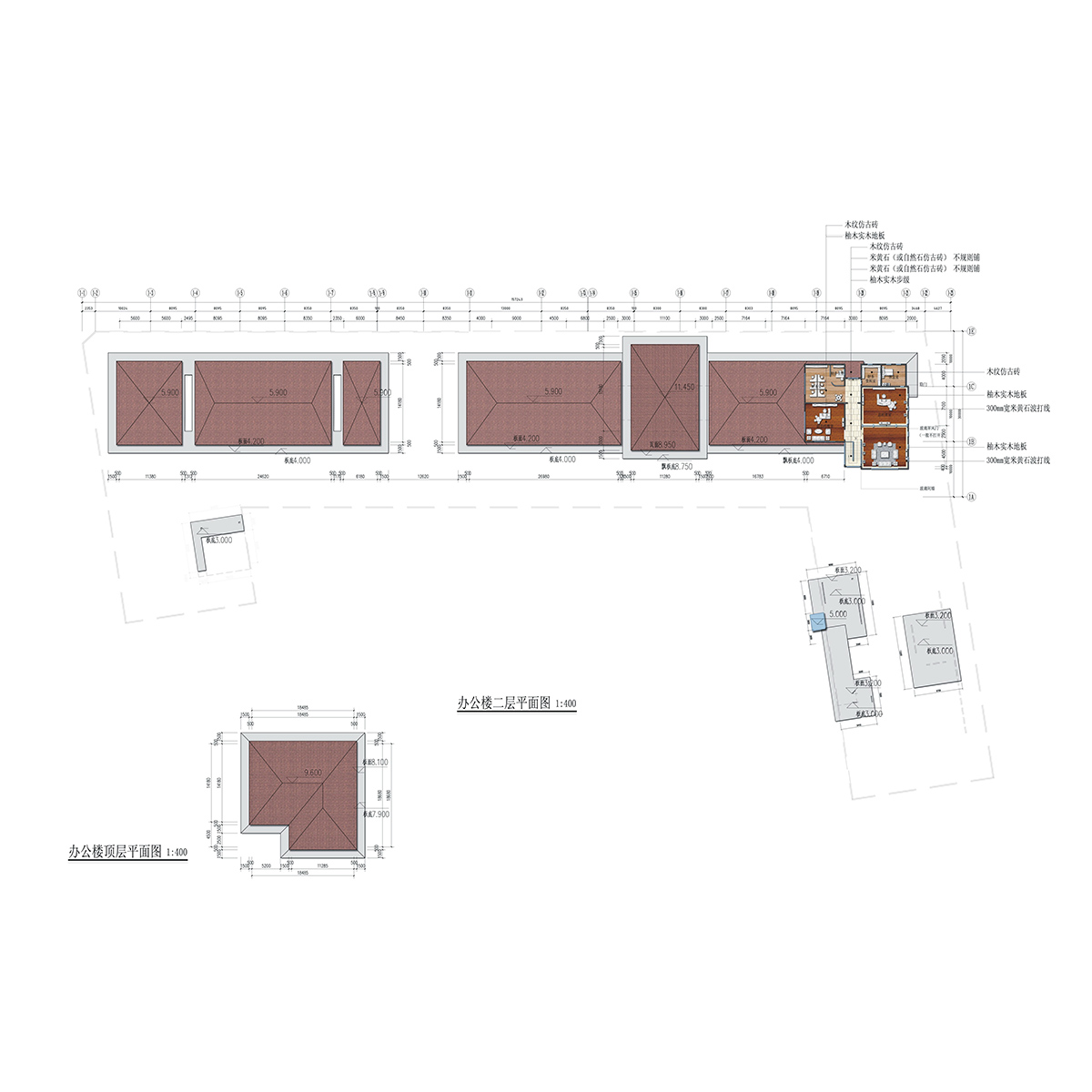
  • 设计师从小时候见过的古代建筑“尺画”中得到启发,古画中云雾寥绕,亭台楼阁参差其中。古人游赏玩乐,嬉戏生活,仿佛人间仙境。“观云”的想法由此而生。在约20米高的平台上再建造一个全新的开放自由的办公楼,一个全新的生态环境。平面布局上,我们沿用古画及苏州园林里散点透视的做法。办公楼的动线设计甚有古意,空间的流动让人有“游”于空间的感受,仿佛“桃花源记”的描述。 室内空间遵循简约的原则。空间是主角,装饰以简约为主。弱化装饰的痕迹,而突出人与建筑的关系。我们的目地在于建立一个“场所”,让人、建筑、室内、环境与自然之间产生强烈的对话。空气,光线,水,木,石等自然元素成为构成空间的基本语汇,在这里人与自然对话、共生,“观四时变化,看云淡风轻”。与时下高楼林立的CBD办公环境不同,我们创造了另外一种境界。
  • 图片
  • 图片
  • 图片
  • 图片
  • 图片
  • 图片
  • 图片
  • 图片
  • 图片
  • 图片
  • 图片
  • 图片
  • 图片
  • 图片
  • 图片
  • 图片
  • 图片
  • 图片
  • 上一个 下一个
    2025第九届金腾奖 私宅空间 | 旅居空间 | 城市功能空间 | 人气设计师 | NEW100 jintengAWARD(小金_金腾奖组委会) 广州市海珠区琶洲大道68号华新中心21楼
    金腾奖视频号 金腾奖小红书号 监制:余佳灵
    统筹:张俊媚
    运营:赖钰炼 曹凯月 刘芳棋 小金
    新媒体:王贝贝 严洁 张文一
    技术:丁德昌
    最终解释权归金腾奖主办方所有