CHUANLIAN — Liquor Retail Experience Space
作品详情
  • Details of the work 标题横线
    头像或者logo
    图片 张路川
    城市:成都市
    公司: 成都亦可空间设计
    参赛作品: 川连酒荟
    空间类型:商业
    个人/公司简介:
    成都亦可空间设计,一个专注于空间设计的小型事务所。我们一直秉持这一个知我定位: 亦可,即也可随意并非摇摆不定,左右逢源,而是对坚定决心的信仰,是对反其道而行之的自信。 亦可是一种设计态度,在商品经济如此繁盛的今天,宁愿退居一隅,坚守初心,为纯粹的设计。
    设计说明 | Design Instruction
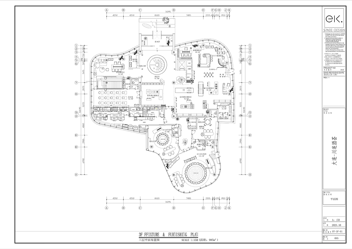
  • 一、叙事起点:一段关于探索与归来的航程 设计概念源自大连这座以航海为特征的城市。我们以“业主28年前启航去寻找世界美酒”为叙事主线——他从海上出发,漂流、发现、收藏,最终带着满载佳酿的百宝箱回到家乡。空间的游览动线即由此展开: 入口处,一个巨型百宝箱装置成为“回归”的象征; 白酒区以“漂流瓶”式陈列讲述探索东方酒香的故事; 红酒区采用全玻璃恒温酒柜与开放式展陈, 混合陈列区提取“风帆”造型构建酒架与隔断; 而体验区的顶面则以雕塑化的“海浪”造型象征探索与发现的瞬间。 空间叙事由物化的装置转化为情绪的引导,形成一个从“启航”到“归来”的沉浸式旅程。 体验革新:从交易到共感 川连最具差异化的价值在于“体验”。在这里,消费者不再被导购跟随,而是通过扫描二维码进入品牌APP,自由探索。 APP不仅提供商品介绍,更像一位数字侍酒师: 它能通过视频介绍酒的产地、风味与故事,用户可选择“专业讲解”或“通俗讲述”; 若对某款酒感兴趣,可一键点选“试饮”,由服务员将酒送至座位。 空间中设置了大量可落座区域,让消费者在探索中随时停下、品饮、交流。 这种从主动消费转为感性体验的设计逻辑,让购物节奏从“快”转为“慢”,让零售重新回归人本的愉悦。 情景构建:为每一位客人定制体验 川连并非仅售卖商品,更能为客人定制专属的购物体验。 例如,当一对新人来到此处为婚礼挑选酒品,侍酒师会为他们定制一整套“仪式用酒方案”——从欢迎酒、主宴酒到派对用酒。新人在不同场景区中逐一试饮与选择,体验过程本身便成为一场专属的“婚礼预演”。 这样的定制服务让消费成为“参与式体验”,也建立起品牌与客户之间长久的信任关系。 空间语言:以航海文化重构零售语汇 空间形态以“航海”为隐喻—— 桅杆与风帆被转译为展架与隔断; 海浪被抽象为顶面浮雕; 漂流瓶成为白酒区的陈列装置; 而整体灯光采用DALI智能调光系统,根据时间与使用场景自动调整亮度与色温,让空间在“品鉴”“休憩”“活动”等不同状态下切换不同氛围。 这种具情绪感的光环境不仅节能环保,也成为社交媒体上用户打卡分享的视觉焦点。 品牌重生:重塑人与空间的关系 在这个项目中,我们试图回答一个更大的问题: 当线上零售不断蚕食实体空间的价值时, 设计,是否能让“消费”重新变得有温度? 川连酒荟给出的答案是——让体验成为新的信任,让空间成为品牌最有力的叙述者。
  • 图片
  • 图片
  • 图片
  • 图片
  • 图片
  • 图片
  • 图片
  • 图片
  • 图片
  • 图片
  • 图片
  • 图片
  • 图片
  • 图片
  • 图片
  • 图片
  • 图片
  • 图片
  • 图片
  • 图片
  • 图片
  • 上一个 下一个
    2025第九届金腾奖 私宅空间 | 旅居空间 | 城市功能空间 | 人气设计师 | NEW100 jintengAWARD(小金_金腾奖组委会) 广州市海珠区琶洲大道68号华新中心21楼
    金腾奖视频号 金腾奖小红书号 监制:余佳灵
    统筹:张俊媚
    运营:赖钰炼 曹凯月 刘芳棋 小金
    新媒体:王贝贝 严洁 张文一
    技术:丁德昌
    最终解释权归金腾奖主办方所有