Qimai Biotech Reception Center
作品详情
  • Details of the work 标题横线
    头像或者logo
    图片 西安四月初吉环境艺术设计有限公司
    城市:西安市
    公司:西安四月初吉环境艺术设计有限公司
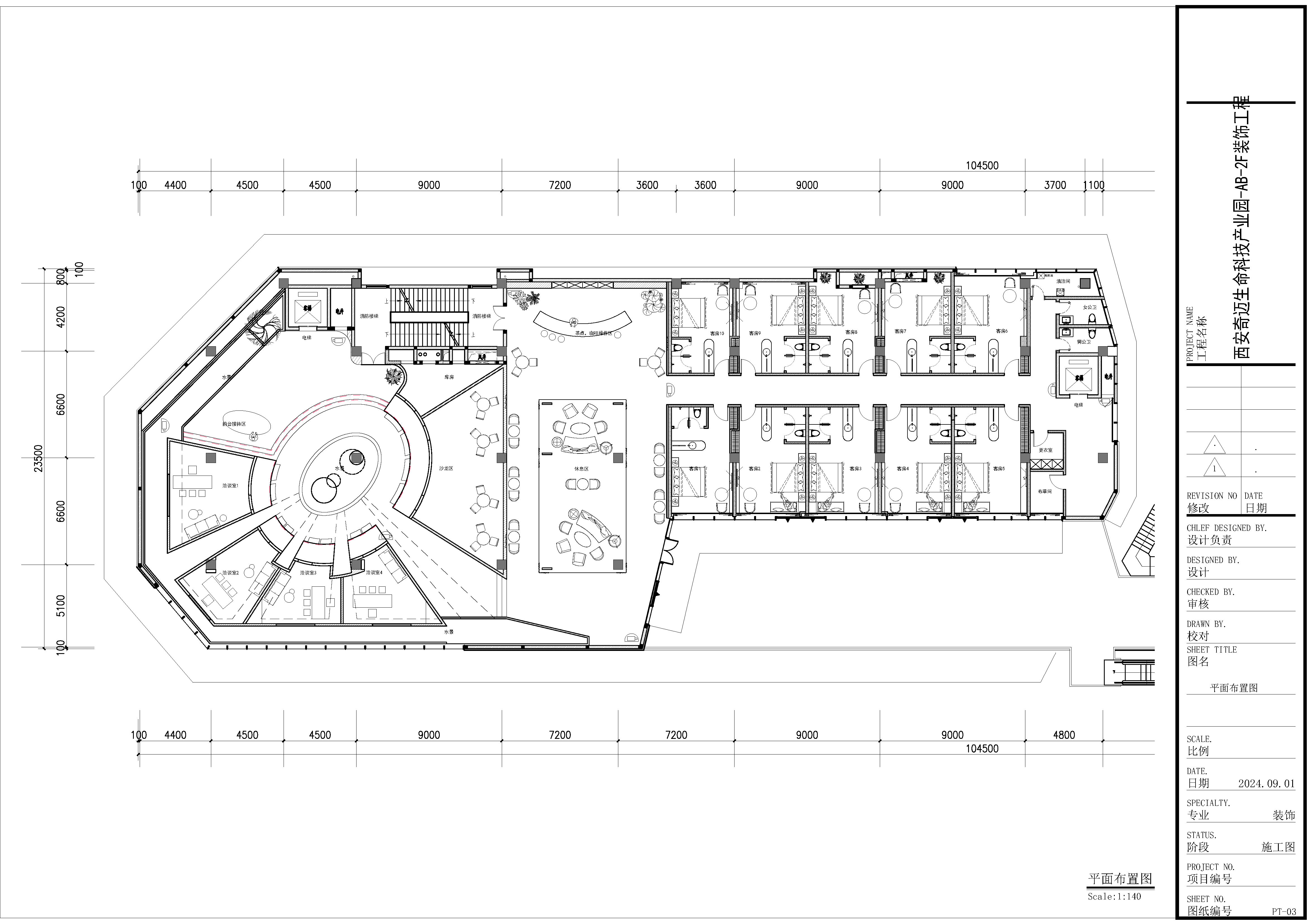
    参赛作品: 奇迈生物接待中心
    空间类型:商业
    个人/公司简介:
    西安四月初吉环境艺术设计有限公司成立于2017年,以设计学院为强大依托,是一家综合实力卓越的专业设计机构。公司专注于为酒店餐饮、商业办公、高端会所及豪宅地产等大型企业,提供全方位的室内专业设计服务。公司凭借卓越的设计能力,先后为凯悦、万丽、云缦山庄等星级酒店,量身定制艺术品设计及升级方案。同时,积极参与并出色完成了多家大型房地产企业售楼中心与样板房的设计及施工项目。公司的设计师团队实力超群,多次斩获国内外设计大奖。团队所具备的强大凝聚力与创造力,始终是推动四月初吉持续发展的核心动力。此外,公司特邀多名知名美院教授,共同参与并监督设计工作,这些专家同时构架起公司的核心领导层。在此基础上,公司建立起一套科学且严谨的内部管理模式与工作流程。目前,公司汇聚了来自不同地域、拥有多元文化与学术背景的众多设计人才,是一家极具综合实力的艺术设计公司。
    设计说明 | Design Instruction
  • 本设计以 **“东方哲思与科技人文的共生场域”** 为核心命题,为奇迈生物打造兼具文化底蕴与品牌特质的招待会所。通过空间的传统符号转译、材质的古今对话及光影的意境营造,诠释生物科技企业对 “生命智慧” 的深层探索,同时为高端商务接待构建极具辨识度的文化体验场景。 一、空间叙事:传统形制与未来精神的叠合 核心迎宾区:以圆形水庭为空间枢纽,红色环形装置如 “天圆” 意象,呼应东方哲学的圆满观;两根蓝调金属柱似 “生命之柱”,隐喻生物科技对生命本质的探索。水幕与星光顶的组合,将 “水的灵动” 与 “星的浩瀚” 并置,暗喻生命科学 “微观探索与宏观视野” 的研究维度,让访客在踏入空间的瞬间,即感知到传统意境与科技精神的碰撞。 过渡廊道区:以几何菱形灯装置打破传统廊道的单调感,菱形的多面性象征生物科技的跨学科属性;两侧的竹纹格栅门、木质铺地则植入东方 “竹文化” 的高洁意涵,传递品牌对 “纯粹科研、谦谨探索” 的价值追求,实现从公共空间到私密场域的自然过渡,也完成从科技感向人文感的情绪转译。 二、材质语言:东方肌理与现代工艺的对话 传统材质:木质天花的温润质感、竹纹玻璃的雅致肌理、中式壁灯的金属古韵,提炼东方美学的经典元素,营造 “宾至如归” 的文化亲切感,契合高端商务招待中 “以文会友” 的社交需求。 现代材质:蓝调金属柱的工业质感、黑色抛光石材的精密感、LED 灯带的科技感,锚定企业的生物科技属性,让传统空间不流于复古,而是在材质碰撞中展现 “以科技赋能传统体验” 的品牌特质,如金属柱的反光效果,可视为对生命微观结构的抽象表达。 三、光影意境:自然意趣与科技匠心的融合 核心区的水幕光影随水流动态变化,如生命的律动;星光顶的点状光源模拟宇宙星辰,暗合生物基因的密码序列。廊道的菱形灯装置则以几何光影切割空间,形成 “传统含蓄” 与 “现代直白” 的光影对话,让每一处光影都成为 “生命与科技” 主题的视觉注脚。 四、品牌价值:文化场景与企业精神的共鸣 会所的设计深度嫁接奇迈生物的品牌内核 —— 以东方 “生生不息” 的生命哲学为底色,以现代生物科技的创新精神为羽翼。当访客在传统格栅前驻足、于科技感水庭中洽谈时,能直观感知到企业 “尊重生命本源,探索科技边界” 的发展理念,使招待空间从 “社交场所” 升维为 “品牌文化的沉浸式展厅”。 本设计通过东方美学与科技语言的双向赋能,让招待会所成为奇迈生物对外传递品牌温度与文化厚度的重要载体。在传统与现代的平衡、人文与科技的交融中,构建出独属于生物科技领域的高端招待空间范式,实现 “以文化涵养商务,以空间传递品牌” 的设计目标。
  • 图片
  • 图片
  • 图片
  • 图片
  • 图片
  • 图片
  • 图片
  • 图片
  • 图片
  • 上一个 下一个
    2025第九届金腾奖 私宅空间 | 旅居空间 | 城市功能空间 | 人气设计师 | NEW100 jintengAWARD(小金_金腾奖组委会) 广州市海珠区琶洲大道68号华新中心21楼
    金腾奖视频号 金腾奖小红书号 监制:余佳灵
    统筹:张俊媚
    运营:赖钰炼 曹凯月 刘芳棋 小金
    新媒体:王贝贝 严洁 张文一
    技术:丁德昌
    最终解释权归金腾奖主办方所有