Photosynthetic Mirror
作品详情
  • Details of the work 标题横线
    头像或者logo
    图片 佛山市易思维室内设计有限公司
    城市:佛山市
    公司:佛山市易思维室内设计有限公司
    参赛作品: 光合之镜
    空间类型:办公
    个人/公司简介:
    全建文&吴国华先生是佛山易思维室内设计有限公司创始人,拥有19年以上丰富的设计和施工顾问经验,一直专注于室内设计、家具设计,不断的突破自我创新,用心设计。作为一个跨界的商业空间设计师致力于提供商业与设计融合的设计理念,以合伙人的角色为跨行业多个品牌公司提供深度商业战略规划咨询,通过对消费者的深度洞察和灵活创新思路,成功为经营者建立业务初期的商业模式转型升级。
    设计说明 | Design Instruction
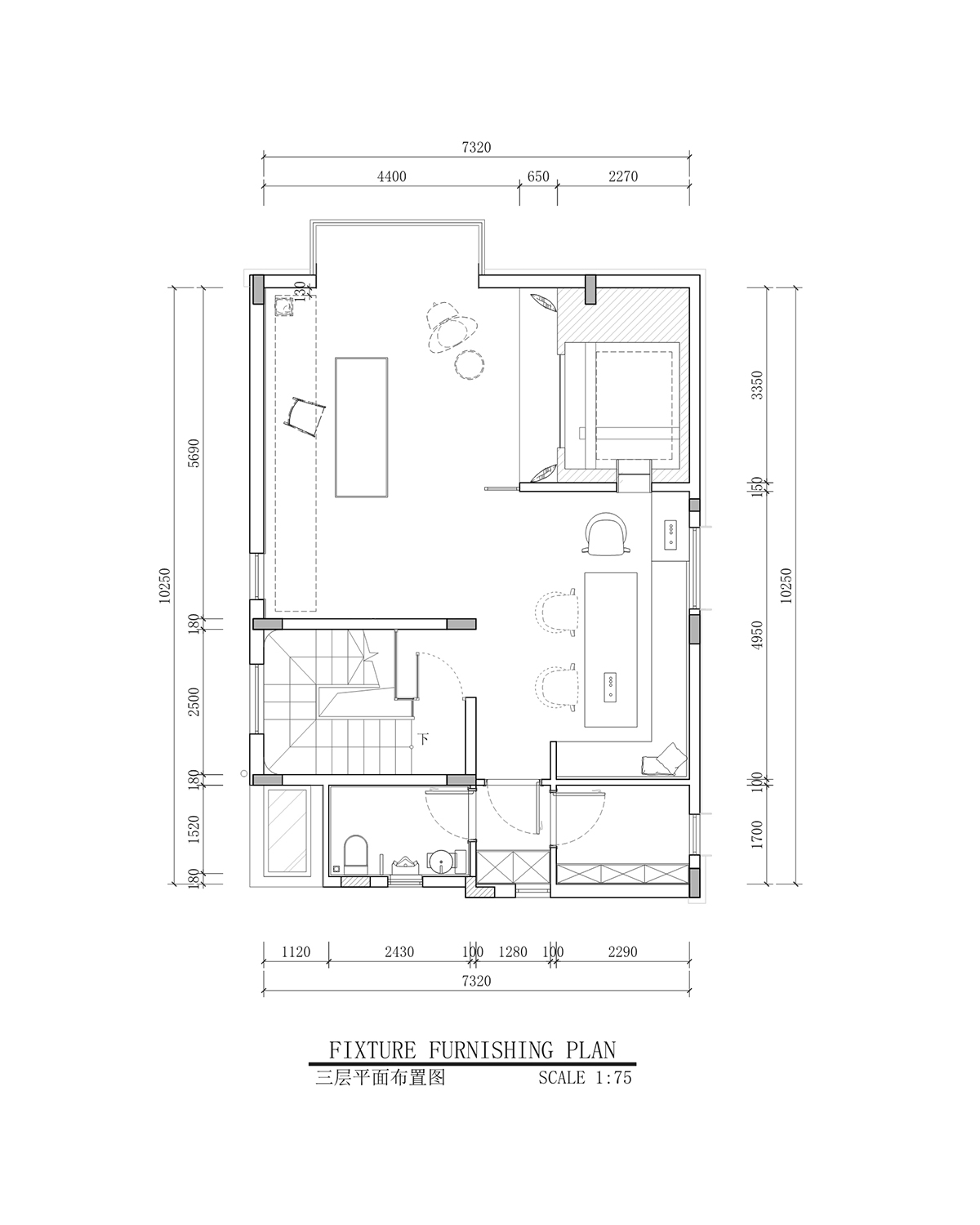
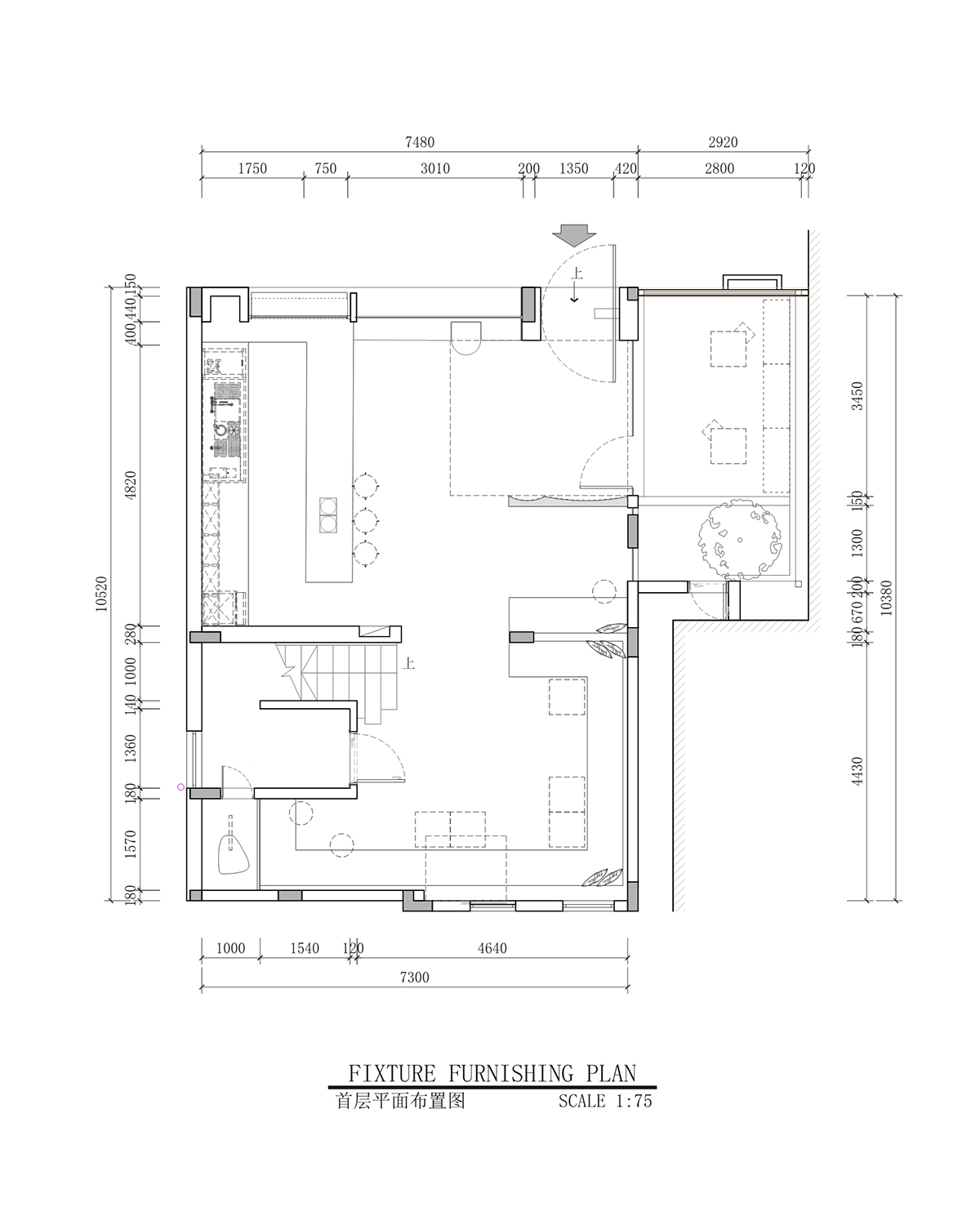
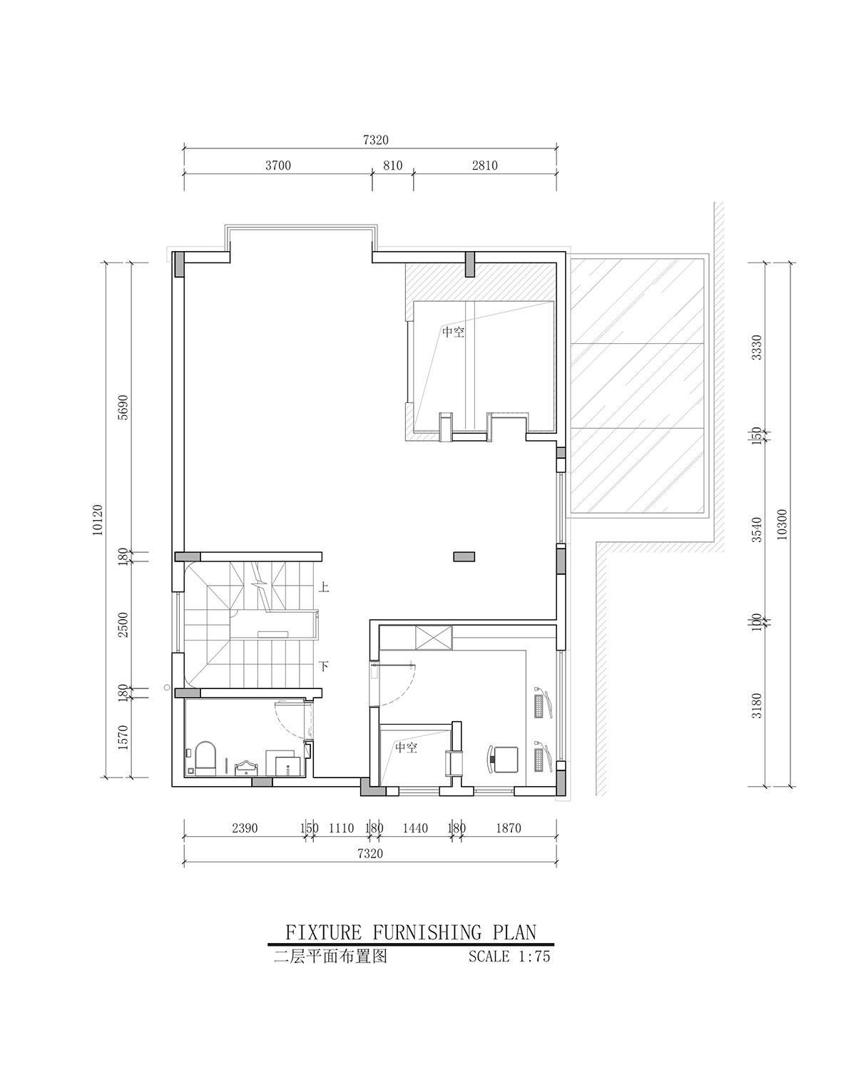
  • 建筑从来不是静态的存在,而是具有生命特征的有机体,犹如植物一样,为了多争取一点阳光,不断向四周延伸。如果阳光需要计算容积率的话,我们便在有限的空间内穿插了一个"光合作用"的核心器官,虽然貌似限制了一定的活动空间,却无边际地让光线流动,延伸了视野。室内一层为休闲的社交空间,二层为参观空间,三层为创作与私人空间。这里不单纯是工作室而被定义,当仰首可见上层行走者的身影,如一幅幅移动的剪贴画;当俯视下层空间又似一幅展开的卷轴,人的活动与艺术陈设尽收眼底。空间、人影、艺术就在彼此观照中交融一体,从而成了流动的艺术空间,同时也是创作者与参观来往的人分享交流和聚集的地点。打破设计界纯粹的设计,不断为设计赋能。设计不是单单设计,而是让设计的产业带来更多的价值,在未来的时代,相信是一个整合时代,甚至是设计与产业的互补,一种展示,一种共存。
  • 图片
  • 图片
  • 图片
  • 图片
  • 图片
  • 图片
  • 图片
  • 图片
  • 图片
  • 图片
  • 图片
  • 图片
  • 图片
  • 图片
  • 图片
  • 图片
  • 图片
  • 图片
  • 图片
  • 图片
  • 图片
  • 图片
  • 图片
  • 图片
  • 图片
  • 图片
  • 图片
  • 图片
  • 图片
  • 图片
  • 图片
  • 图片
  • 图片
  • 图片
  • 图片
  • 图片
  • 图片
  • 上一个 下一个
    2025第九届金腾奖 私宅空间 | 旅居空间 | 城市功能空间 | 人气设计师 | NEW100 jintengAWARD(小金_金腾奖组委会) 广州市海珠区琶洲大道68号华新中心21楼
    金腾奖视频号 金腾奖小红书号 监制:余佳灵
    统筹:张俊媚
    运营:赖钰炼 曹凯月 刘芳棋 小金
    新媒体:王贝贝 严洁 张文一
    技术:丁德昌
    最终解释权归金腾奖主办方所有