TRAVEL LIFESTYLE HOTEL STYLE
作品详情
  • Details of the work 标题横线
    头像或者logo
    图片 广州睿致艺术设计有限公司
    城市:广州市
    公司:广州睿致艺术设计有限公司
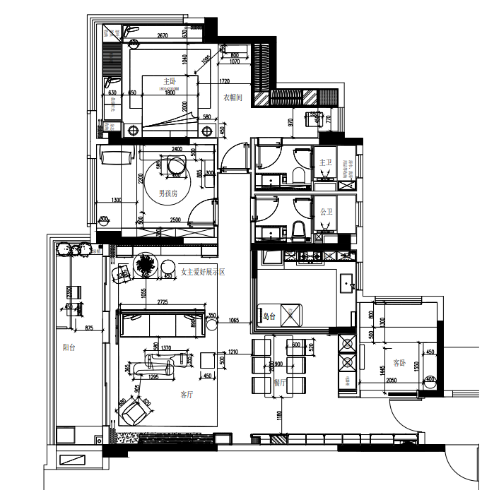
    参赛作品: 典雅聚场●海派艺居
    空间类型:公寓(150㎡以下)
    个人/公司简介:
    “广州睿致艺术设计有限公司”成立于2017年, 是一家集空间设计、软装设计与陈设、产品研发为一体的设计服务机构。聚焦于空间创意与落地,为地产发展商、各类企业等提供专业化、全流程的商业、审美与运营解决方案,助力品牌持续性升级。
    设计说明 | Design Instruction
  • 本户型样板房,是为80后80后回流享悦家庭打造的一套雅奢艺术居住空间,软装在家具材料上用木饰面,金属以及皮增加层次感,不同材质的碰撞使整个空间檫出火花,创新的造型感,空间温馨舒适,中间跳跃黄色,提升整个空间的现代温馨的格调。 高效利用台面及吊柜之间的收纳黄金三角区,将收纳重新塑型,在烹饪区及水盆区同时设置薄架系统。让随手之物,物有归处。色彩搭配以温馨浪漫的紫色为基调,营造月满花香的艺术之家。
  • 图片
  • 图片
  • 图片
  • 图片
  • 图片
  • 图片
  • 图片
  • 图片
  • 图片
  • 图片
  • 图片
  • 上一个 下一个
    2025第九届金腾奖 私宅空间 | 旅居空间 | 城市功能空间 | 人气设计师 | NEW100 jintengAWARD(小金_金腾奖组委会) 广州市海珠区琶洲大道68号华新中心21楼
    金腾奖视频号 金腾奖小红书号 监制:余佳灵
    统筹:张俊媚
    运营:赖钰炼 曹凯月 刘芳棋 小金
    新媒体:王贝贝 严洁 张文一
    技术:丁德昌
    最终解释权归金腾奖主办方所有