A gentle and refined residence
作品详情
  • Details of the work 标题横线
    头像或者logo
    图片 詹冰
    城市:郑州市
    公司: 河南鼎合设计
    参赛作品: 温润之邸
    空间类型:别墅
    个人/公司简介:
    河南鼎合建筑装饰设计工程有限公司&知邸设计 主任设计师 河南城建学院环艺设计专业外聘导师 河南工艺美术师 中国建筑学会室内设计郑州分会(IID-ASC) 会员
    设计说明 | Design Instruction
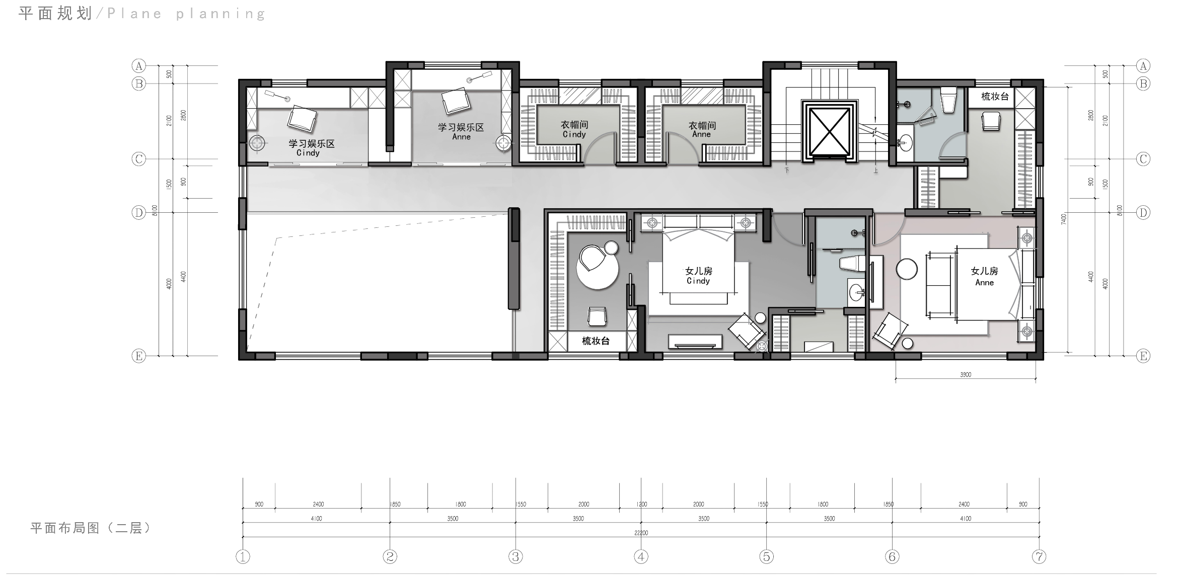
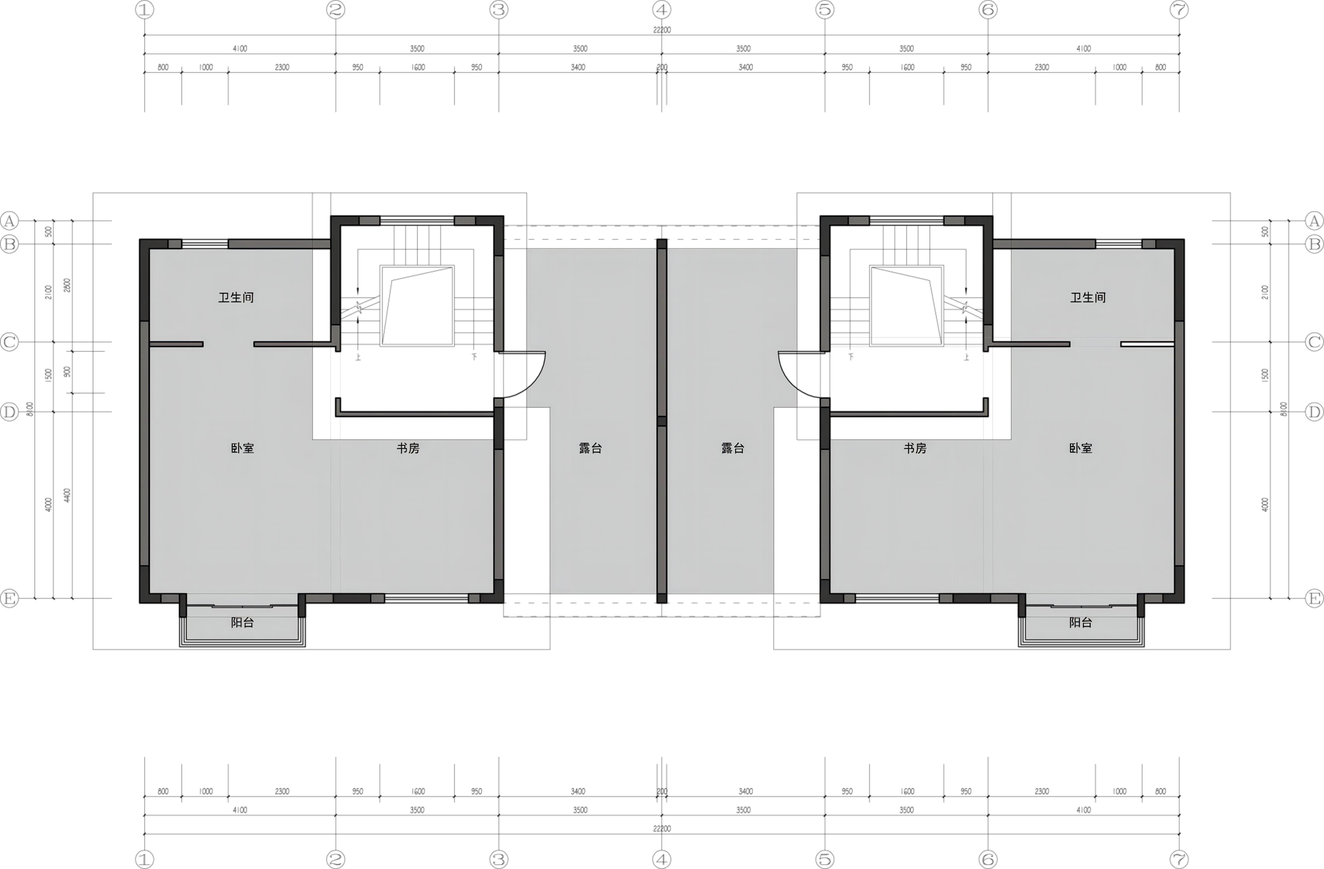
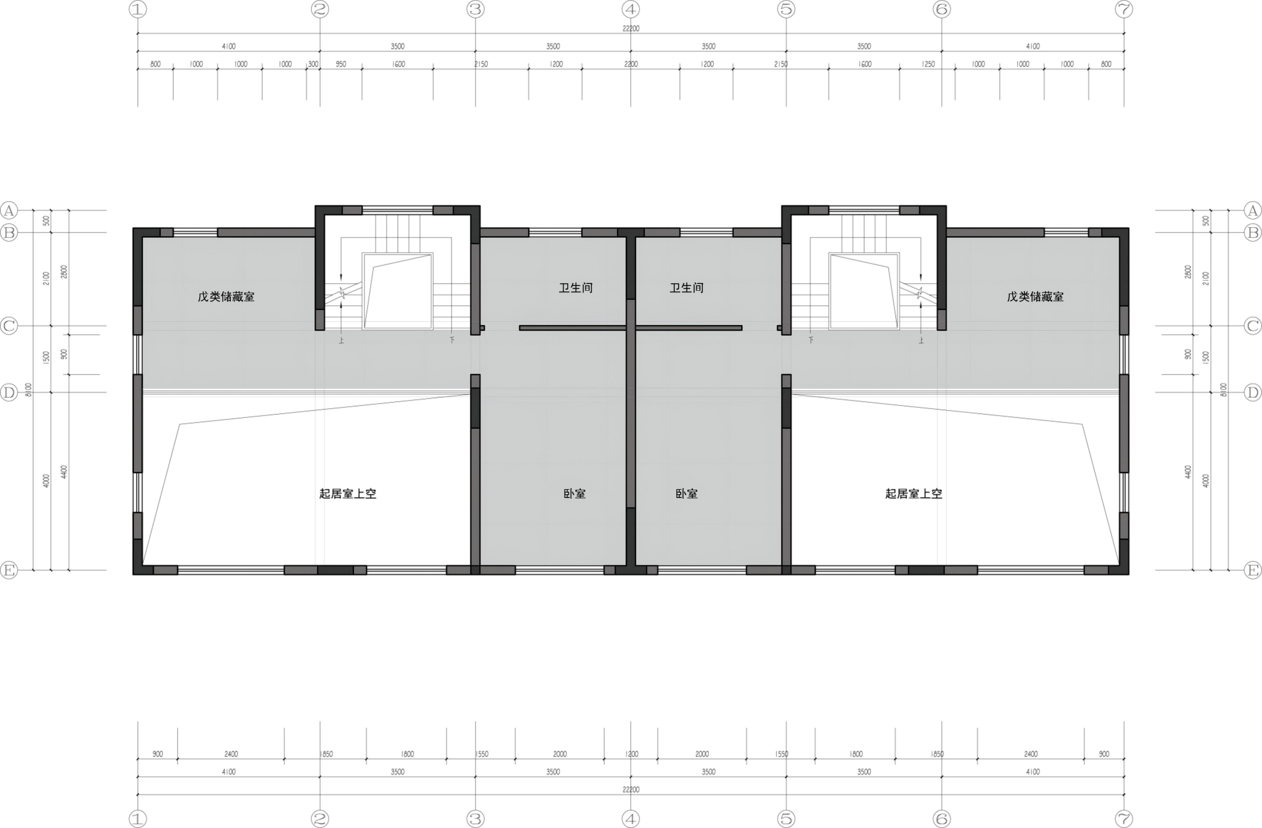
  • 本项目位于郑州航空港区,是由两套联排别墅打通而成的独栋别墅,室内面积约: 900m²;庭院面积约: 320m²。 业主是国外归来的高知总裁夫妇,委托我们打造适合他们的理想生活居所。 在经过梳理分析后,将整体空间划分为五层。一层除老人房外,将空间完全留给了客餐厅功能需求,6米挑高区增加了空间的开阔感,配合窗景将视线引伸至天空,让人心生舒朗之意。客餐厅利用原有建筑墙体巧妙规划形成回游动线,各功能区在独立与开放的交互中营造出理性而克制的空间底色。 二层空间属于孩子们,两个卧室都配有独立的卫浴间及衣帽间,人格的独立与自由得以保障。另一端则是书房与钢琴区,黑白琴键、朗朗书声赋予空间浓烈的文化艺术气息。 三层空间进行了有效扩容,两端是男女主人各自的起居室,尊重彼此不同的生活步调。中间则是将原建筑露台封闭打造成男女主人工作生活的情绪转换之所,巨大的落地窗让室内成为光的容器,将生活的本质藏匿于空间的氛围之中。 负一层涵盖设备间、家政间及休闲娱乐空间,负二层则作为常用入户通道,串联起一家人的生活轨迹。
  • 图片
  • 图片
  • 图片
  • 图片
  • 图片
  • 图片
  • 图片
  • 图片
  • 图片
  • 图片
  • 图片
  • 图片
  • 图片
  • 图片
  • 图片
  • 图片
  • 图片
  • 图片
  • 图片
  • 图片
  • 图片
  • 图片
  • 图片
  • 图片
  • 图片
  • 图片
  • 图片
  • 图片
  • 上一个 下一个
    2025第九届金腾奖 私宅空间 | 旅居空间 | 城市功能空间 | 人气设计师 | NEW100 jintengAWARD(小金_金腾奖组委会) 广州市海珠区琶洲大道68号华新中心21楼
    金腾奖视频号 金腾奖小红书号 监制:余佳灵
    统筹:张俊媚
    运营:赖钰炼 曹凯月 刘芳棋 小金
    新媒体:王贝贝 严洁 张文一
    技术:丁德昌
    最终解释权归金腾奖主办方所有