school district housing renovation
作品详情
  • Details of the work 标题横线
    头像或者logo
    图片 李敢 优居特约推荐
    城市:南京市
    公司: 拓新设计
    参赛作品: 学区房改造
    空间类型:公寓(150㎡以下)
    个人/公司简介:
    保持年轻的心,坚持热爱的事。拓新设计创始人,中国建筑文化研究会陈设艺术专业委员会,《D-life设计与生活》杂志特邀编委,南京理工大学设计艺术学院企业导师。
    设计说明 | Design Instruction
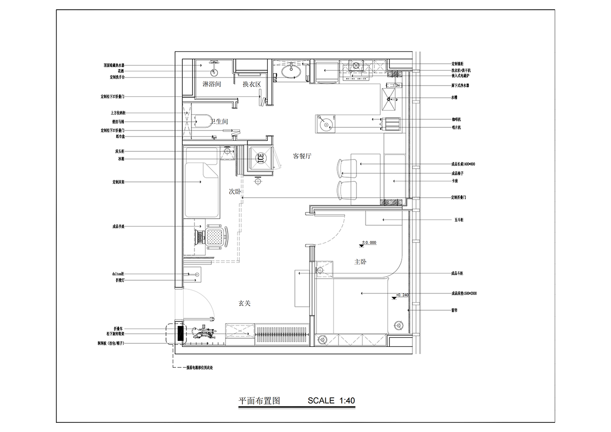
  • 房子原始条件:50平方一房一厅的学区房,业主:一家三口,孩子刚上初一;业主平日爱好咖啡、烘焙、露营、骑行等。设计初期需求的详细描述:业主一家三口,他们对未来的家充满期待,希望在这个位于优质学区的房子里,陪伴他们心爱的孩子度过宝贵的六年中学时光。他们特别强调,希望孩子能够拥有一个属于自己的学习和休息空间,一个可以让他安心学习、放松身心的私人领地。然而,现实的挑战摆在眼前,原房屋的面积显得捉襟见肘,仅有一间卧室,厨房和卫生间的设计也显得非常局促,无法满足一家人的生活需求。因此,业主迫切希望这次改造能够彻底提升厨房和卫生间的使用体验,让生活变得更加舒适和便捷。为了实现业主的愿景,我们的设计团队进行了深入的思考和精心的规划。我们决定将原先进门的客厅位置进行彻底的改造,将其转变为一个既实用又美观的入户收纳空间,同时,这里也将成为家庭成员的主卧室,一个私密而温馨的休息场所。此外,我们还拆除了原有的卧室和厨房,通过重新布局,形成一个宽敞明亮的餐厨一体化空间,不仅满足了家庭成员的日常饮食需求,也成为了家人交流互动的理想场所。为了给女主人一个特别的惊喜,我们特意为她设置了一个面向窗外的咖啡吧台区域。这里不仅是一个制作咖啡的角落,更是一个可以让她在忙碌之余,享受一杯香浓咖啡,同时欣赏窗外风景的惬意空间。卫生间的设计也经过了精心考虑,我们采用了干湿分离的布局,这样的设计不仅提升了空间的使用效率,也使得日常的清洁和维护变得更加轻松便捷。通过这些细致入微的设计,我们希望业主一家能够在这个经过精心改造的家中,享受到更加舒适、便捷和愉悦的生活体验。
  • 图片
  • 图片
  • 图片
  • 图片
  • 图片
  • 图片
  • 图片
  • 图片
  • 图片
  • 图片
  • 图片
  • 图片
  • 图片
  • 图片
  • 上一个 下一个
    2025第九届金腾奖 私宅空间 | 旅居空间 | 城市功能空间 | 人气设计师 | NEW100 jintengAWARD(小金_金腾奖组委会) 广州市海珠区琶洲大道68号华新中心21楼
    金腾奖视频号 金腾奖小红书号 监制:余佳灵
    统筹:张俊媚
    运营:赖钰炼 曹凯月 刘芳棋 小金
    新媒体:王贝贝 严洁 张文一
    技术:丁德昌
    最终解释权归金腾奖主办方所有