LOOWO
作品详情
  • Details of the work 标题横线
    头像或者logo
    图片 刘鹏
    城市:南京市
    公司: 拓新设计
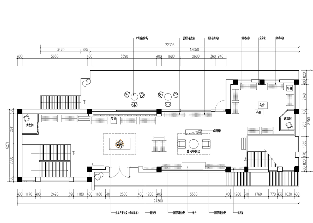
    参赛作品: 乐悟服装店
    空间类型:商业
    个人/公司简介:
    南京 拓新设计 设计总监 毕业于南京艺术学院 设计学院 获得奖项:2025 华为鸿蒙智家设计大赛智能领航奖 2024作品入选中国室内设计年鉴 2024大金第十五届内装设计大赛 全国精致.星势力 金奖 2024金堂奖·2024年度城市十佳 2024作品入选中国室内设计年鉴 2023雅生室内设计奖 铜奖 2017金堂奖 年度优秀零售空间奖
    设计说明 | Design Instruction
  • 本项目为服装店空间设计,核心目标是融合服装展示与消费体验,打造兼具美学价值与实用功能的购物场景,助力店铺吸引行人进店,预期落地后成为区域打卡新地标。​ 设计以 “极简美学下的治愈式体验” 为核心。外立面采用连续玻璃立面,最大化引入自然光,让阳光映照服装如艺术品,同时增强临街吸引力;室内墙面通过材质混搭营造层次感,在极简基调中藏入小心思;陈列按艺术展标准策划,搭配留白设计,让逛店过程如同看展;接待区融入艺术装置,与空间轻盈调性呼应;试衣区依托整体氛围,强化沉浸式感受。​ 整体通过细节把控,实现空间美学与治愈感的统一,既满足服装展示的商业需求,又让消费者逛累时能享受舒适停留,且空间轻盈感与服装调性高度契合,达成商业与美学价值的融合。
  • 图片
  • 图片
  • 图片
  • 图片
  • 图片
  • 图片
  • 图片
  • 图片
  • 图片
  • 图片
  • 图片
  • 图片
  • 图片
  • 图片
  • 图片
  • 图片
  • 图片
  • 图片
  • 图片
  • 图片
  • 图片
  • 图片
  • 图片
  • 图片
  • 图片
  • 图片
  • 图片
  • 图片
  • 图片
  • 图片
  • 图片
  • 图片
  • 图片
  • 图片
  • 上一个 下一个
    2025第九届金腾奖 私宅空间 | 旅居空间 | 城市功能空间 | 人气设计师 | NEW100 jintengAWARD(小金_金腾奖组委会) 广州市海珠区琶洲大道68号华新中心21楼
    金腾奖视频号 金腾奖小红书号 监制:余佳灵
    统筹:张俊媚
    运营:赖钰炼 曹凯月 刘芳棋 小金
    新媒体:王贝贝 严洁 张文一
    技术:丁德昌
    最终解释权归金腾奖主办方所有