Family rule
作品详情
  • Details of the work 标题横线
    头像或者logo
    图片 曲玲玲
    城市:上海市
    公司: 曲象空间设计
    参赛作品: 家天下
    空间类型:别墅
    个人/公司简介:
    曲象空间设计(上海)有限公司的创始人、执行董事和设计总监,公司成立于2022年。设计理念注重空间与生活方式的联动,曾尝试将电梯从功能动线转变为“景观电梯”。
    设计说明 | Design Instruction
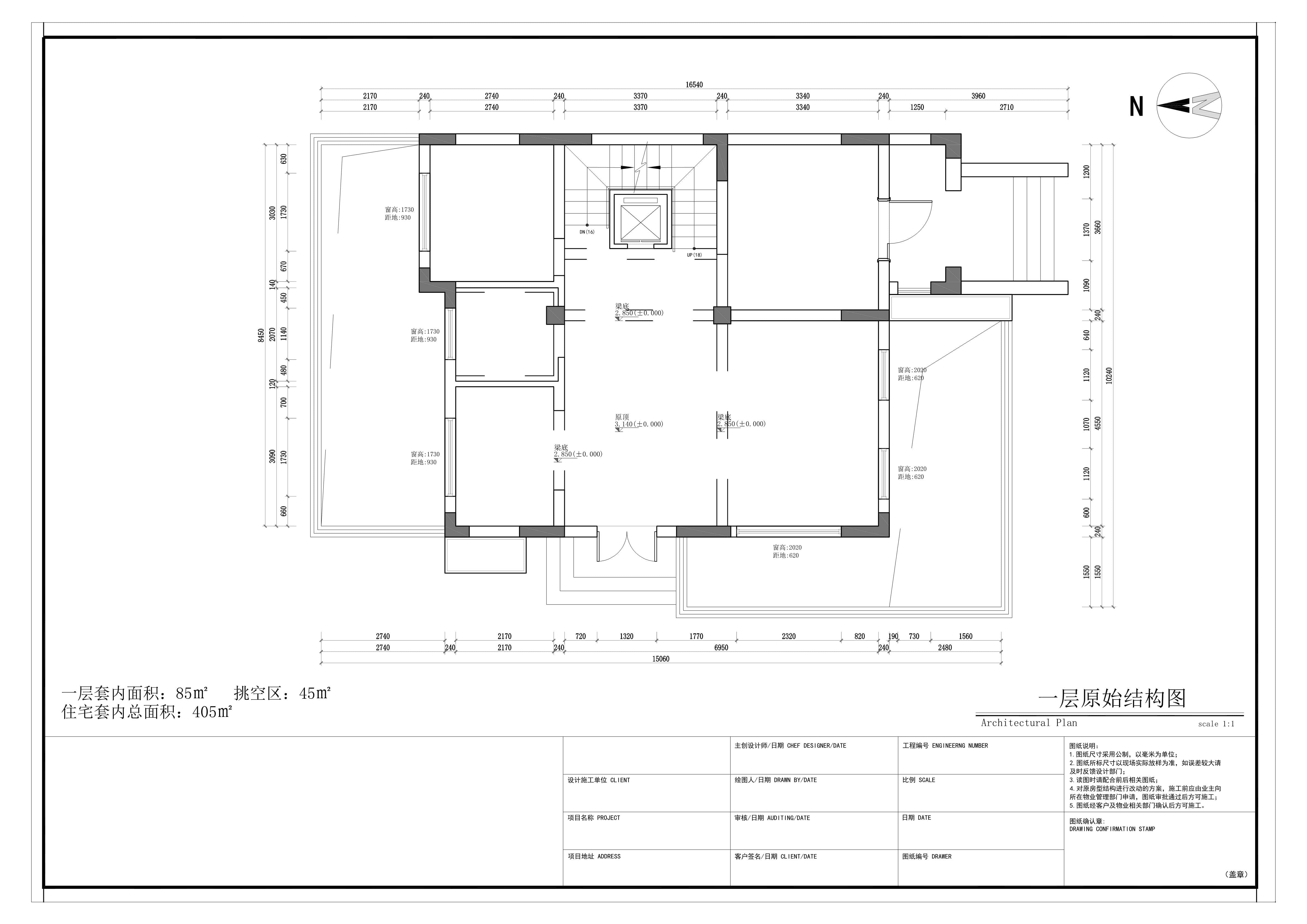
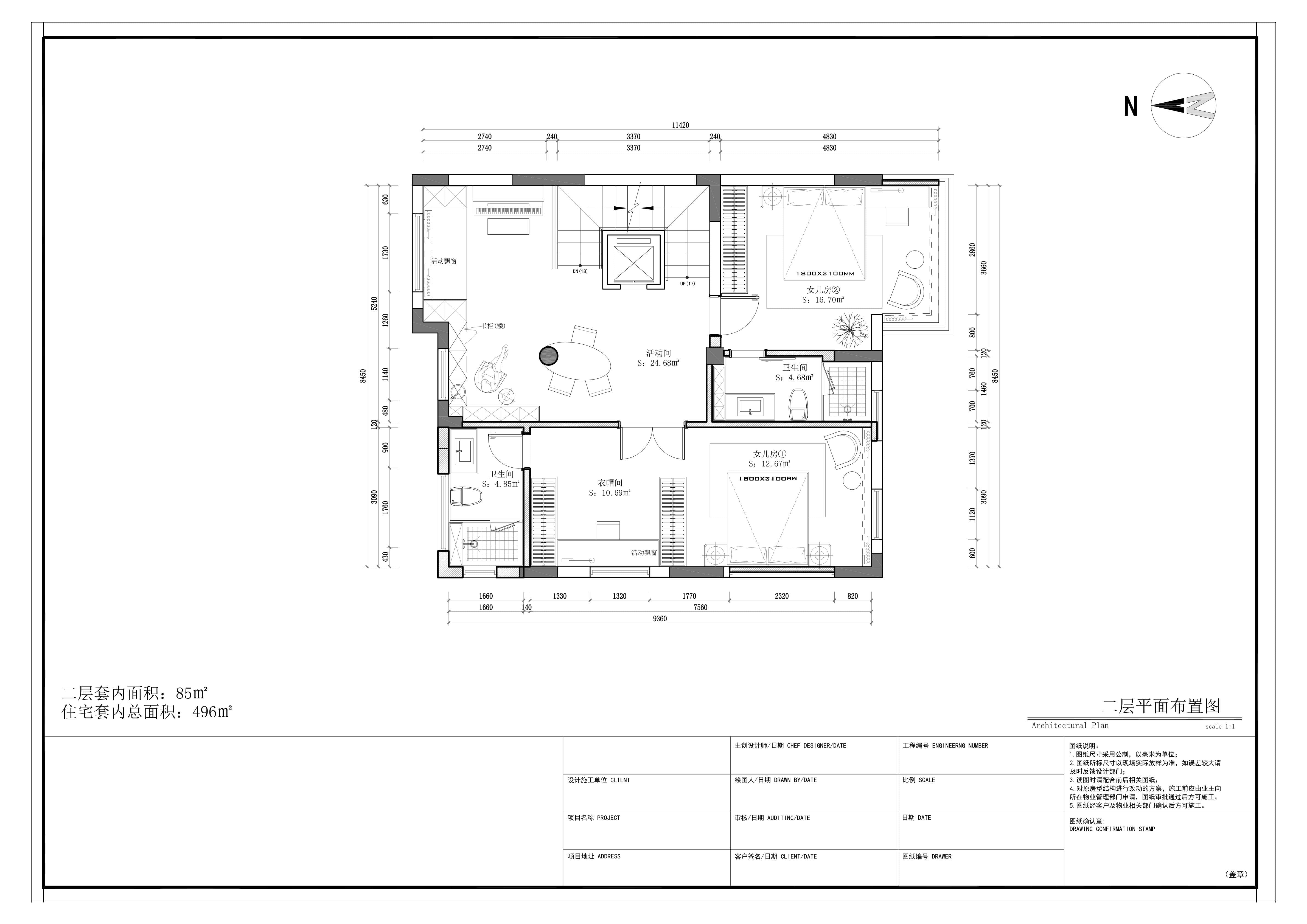
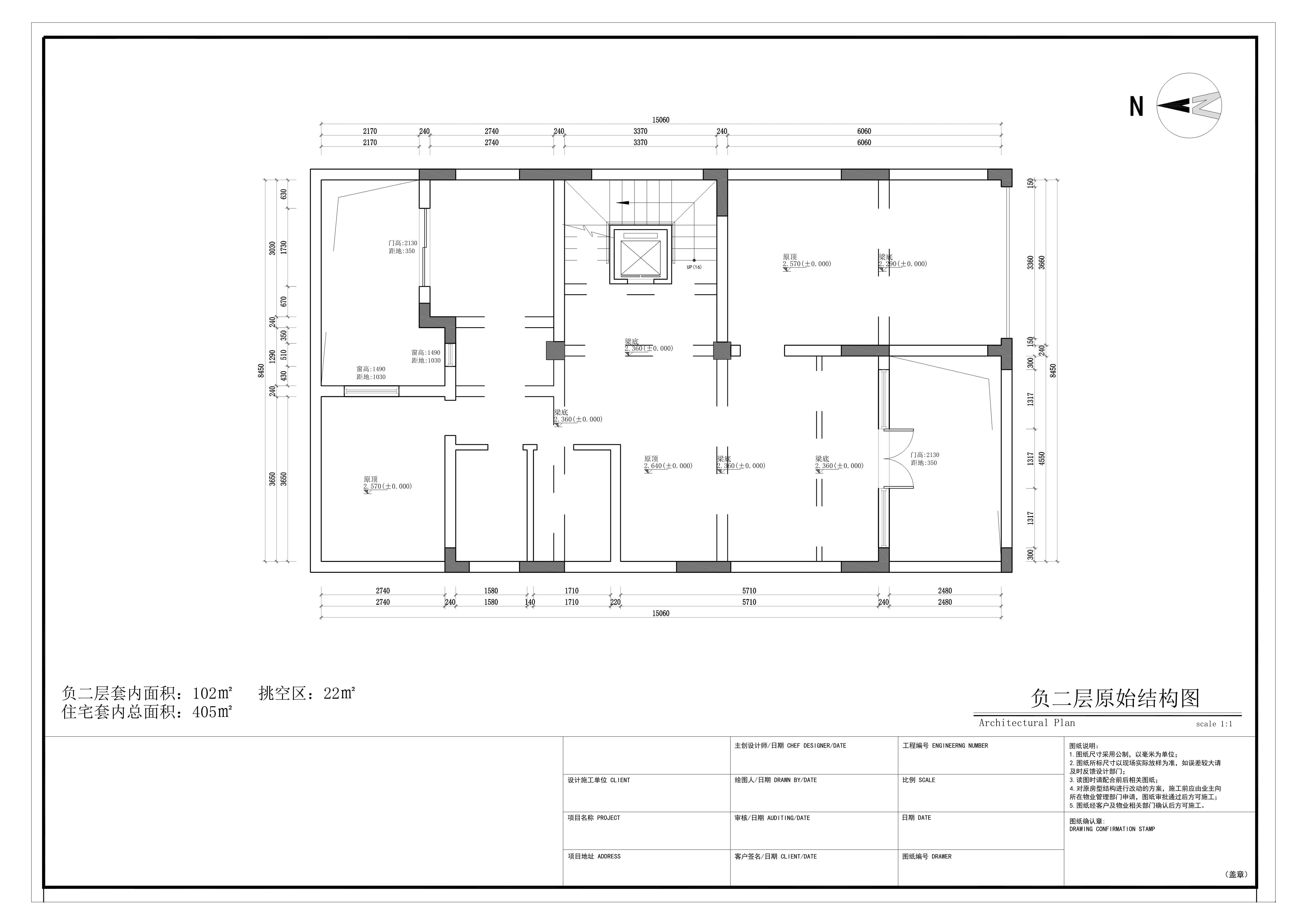
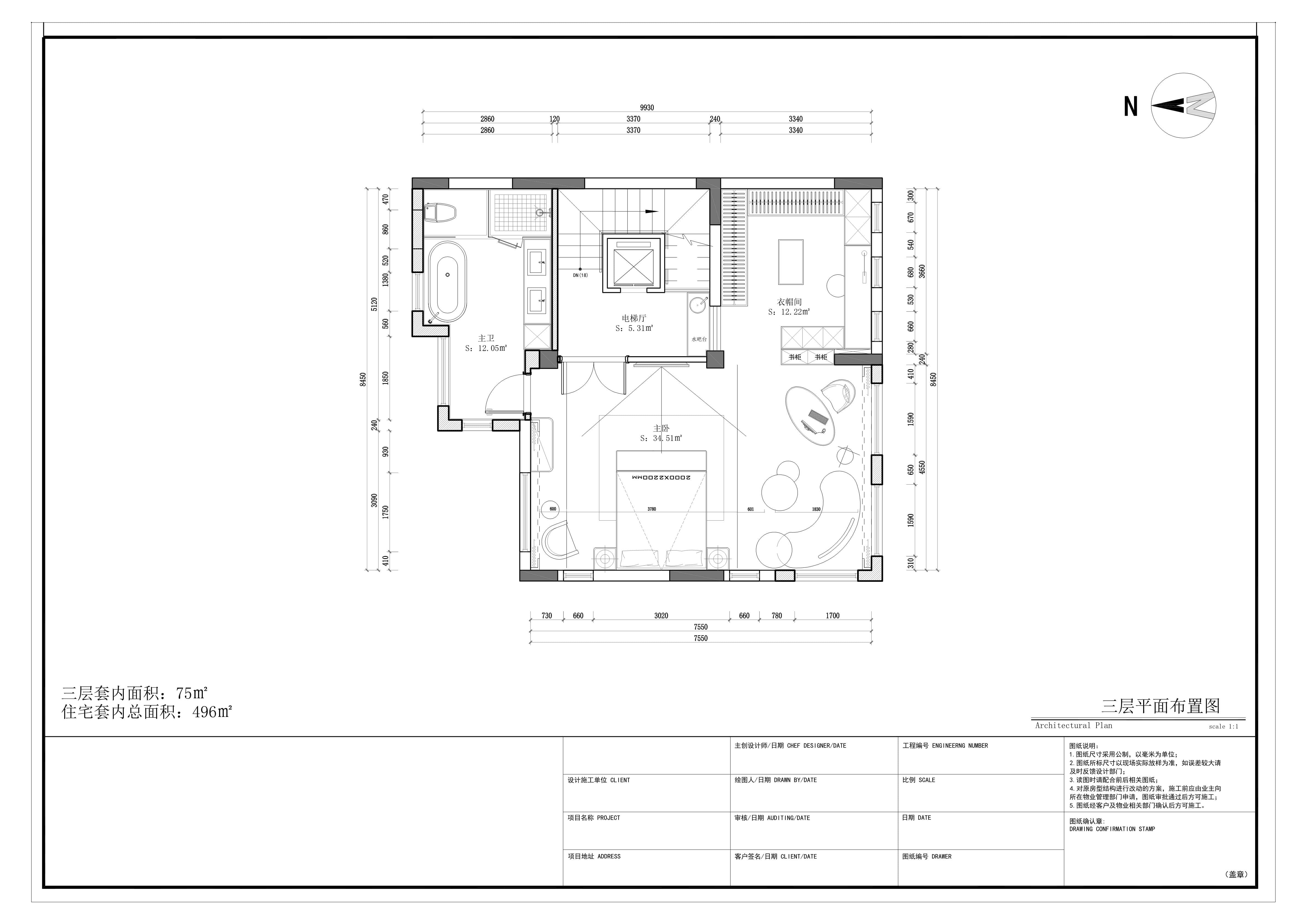
  • 设计核心理念:本案承载着一个新生代家庭的梦想——90后夫妻带着一对如花蕾般娇嫩的女宝宝,在这栋五层别墅里开启人生新章。设计师敏锐捕捉到家庭成员审美的微妙差异:男主人作为科技公司高管,偏爱理性克制的现代感;女主人作为艺术策展人,钟情浪漫氛围;两位小公主则需要充满童趣的成长空间。这种多元需求催生了以“色彩的温度”与“空间的呼吸感”为设计核心,在法式优雅与现代舒适的碰撞中,构建一个充满活力、庭生活场域灵动且兼具功能性的家。通过结构重塑、光影引入、细节雕琢,让每个空间成为承载情感与记忆的容器,为四口之家谱写一首关于生活的温柔协奏曲。 一、色彩与风格的灵魂共鸣 考虑到四口之家的多元需求,我们以大面积暖灰色奠定空间基调,如晨雾中透出的暖阳,既平衡了男业主对“中性化”的偏好,又为女孩子们营造了柔和的生长氛围。软装中巧妙点缀亮色家具与装饰——爱马仕橙抱枕、柠檬黄单椅、祖母绿沙发……色彩如音符般跳跃,让客厅、餐厅、卧室在不同时间段奏响灵动的视觉旋律。轻法式的精髓在此淋漓展现:弧形门洞、石膏线条勾勒的墙面、天鹅绒质感的窗帘,轻盈线条与精致雕琢交织,优雅而不繁复,现代而不失温度。 二、空间重构:突破结构桎梏,重塑功能美学 1.  负一层蜕变:光影厨房与社交餐厅 针对原户型厨房与会客区紧凑的痛点,我们以“垂直空间革命”打破常规:挖掘双采光井,将自然光与空气引入负一、负二楼,采光井面积达到20平方米,显著提升了地下空间的自然采光和通风效果,彻底告别地下室的潮湿与昏暗。厨房与餐厅顺势下沉,提升了整体空间的通透感与使用效率。大理石岛台与金属吊灯碰撞,简约瓷砖与木纹橱柜对话,方太蒸烤箱与恒温酒柜。烹饪与用餐在此成为充满仪式感的互动场景。 2.  负二层:隐秘的休闲宇宙 负二层被打造成男业主的专属天地——3m长的大茶台,可升降健身器材藏于玻璃地台下。 深灰墙面与暗藏灯带营造沉浸氛围。采光井侧墙嵌入6米长的垂直花园,种植迎客松配合鹅卵石,营造都市丛林秘境。让娱乐空间与自然共生,工作或放松时,抬头便可见光影摇曳,疲惫悄然消散。为了确保各个功能区域互不干扰,设计中特别注重声学处理和隔音技术,使每个空间都能独立享受最佳的声效体验。 3.  一楼会客厅:流动的社交艺术 取消原始厨房后,一楼成为家庭与社交的枢纽。通透的布局、弧形沙发与艺术装置围合的对话区、悬浮电视背景墙(壁炉设计)营造的视觉焦点,让会客、亲子互动、家庭聚会自由切换。透光玄关隔断采用钢化玻璃与拉丝金属结合,既保证了空间的通透感,又不失温馨与现代感,如同轻盈的帷幕,引导视线向楼梯延伸,空间从此“会呼吸”。 多功能吧台堪称**空间魔术师**:2.2米长的台面下方隐藏三个功能模块——可升降插座塔、恒温红酒储藏格、宠物喂食系统。台面边缘内嵌无线充电区。这个不足10㎡的区域,实现了社交辅助、临时办公、家居服务等复合功能。 三、私密领域:量身定制的成长诗篇 1.  二楼女儿房:平衡与陪伴的童趣世界 双女儿房以“对称与共享”为设计哲学。房间布局上,设计师精心将空间等分为两个对称的睡眠区,确保每个孩子都有独立且相等的私人领域。无法拆除的承重柱被赋予新生,定制弧形书桌与柱体完美融合,成为姐妹共读、游戏的秘密基地。橙色与暖灰的拼色墙面、云朵造型吊灯、阶梯式储物柜,每个细节都呵护着童年的想象。公共学习区设置在房间中央,方便姐妹俩共同使用,促进了互动与交流,而独立睡眠区都有各自的卫生间,既守护私密,又促进姐妹情感联结。 这种设计不仅在视觉上呈现出和谐的美感,更在实用性上满足了孩子们对学习和私密空间的需求,展示了功能与美学的完美结合。 2.  三楼主卧套房:全景生活的主人剧场 主卧是主人的私享宇宙。步入式衣帽间与开放式储物柜,以展示与收纳的双重智慧满足大量储物需求;临时办公区嵌入转角,书桌与窗景构成静谧的工作画幅。卫生间采用全景玻璃设计,泡澡时可将庭院绿意纳入视野,身体与心灵在此得到双重治愈。异形吊顶设计最大限度保留层高,让睡眠空间如天空般舒展。 四、细节哲学:以光影与质感书写优雅 ●  全屋梁体结构通过弧形吊顶与隐光设计弱化存在感,线条的流动感反而成为设计亮点; ●  金属元素(黄铜拉手、不锈钢踢脚线、大理石茶几)如繁星点缀,为复古基调注入现代精致感; ●  景观天井将绿化引入地下层,绿意与光影的渗透,让室内外边界悄然消融。 设计结语: 这个家,是色彩与功能的交响,是光影与情感的对话。我们剥离空间的刻板印象,用设计回应四口之家的真实需求:丈夫的私密天地、妻子的优雅日常、女儿们的成长乐园,都在这里找到了完美的答案。轻法式的优雅骨架、现代舒适的填充肌理、量身定制的功能细节,共同构建了一个“生长型”的家——它不仅是物理空间,更是生活轨迹的温柔见证者。在这个家中,每一个角落都充满了对未来美好生活的无限想象,它将随着家庭的成长不断焕发新的活力,成为一段段珍贵记忆的温馨容器。我
  • 图片
  • 图片
  • 图片
  • 图片
  • 图片
  • 图片
  • 图片
  • 图片
  • 图片
  • 图片
  • 图片
  • 图片
  • 图片
  • 图片
  • 图片
  • 图片
  • 图片
  • 图片
  • 图片
  • 图片
  • 图片
  • 图片
  • 图片
  • 图片
  • 上一个 下一个
    2025第九届金腾奖 私宅空间 | 旅居空间 | 城市功能空间 | 人气设计师 | NEW100 jintengAWARD(小金_金腾奖组委会) 广州市海珠区琶洲大道68号华新中心21楼
    金腾奖视频号 金腾奖小红书号 监制:余佳灵
    统筹:张俊媚
    运营:赖钰炼 曹凯月 刘芳棋 小金
    新媒体:王贝贝 严洁 张文一
    技术:丁德昌
    最终解释权归金腾奖主办方所有