Sheshan Xiyue
作品详情
  • Details of the work 标题横线
    头像或者logo
    图片 曲玲玲
    城市:上海市
    公司: 曲象空间设计
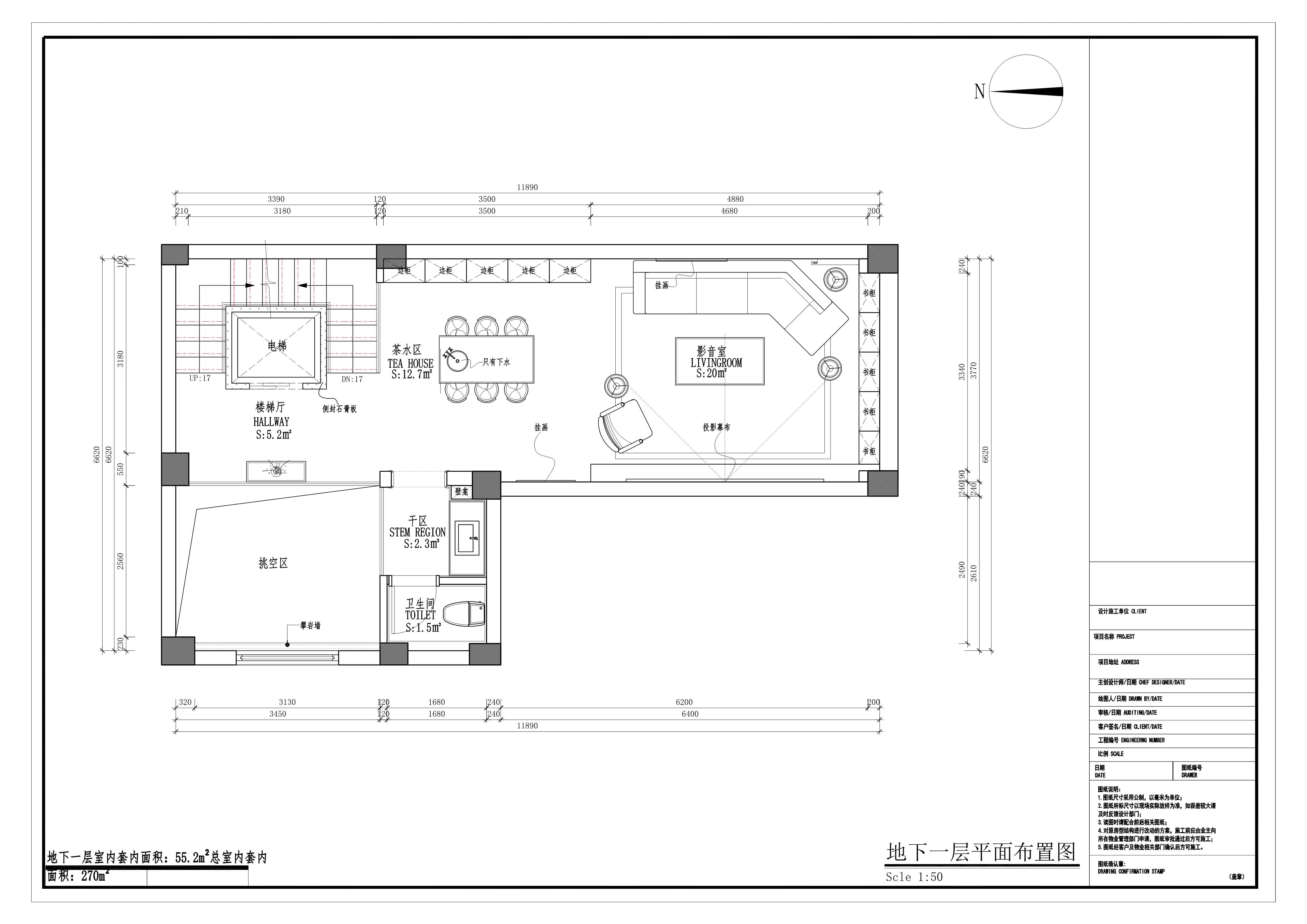
    参赛作品: 佘山玺樾
    空间类型:别墅
    个人/公司简介:
    曲象空间设计(上海)有限公司的创始人、执行董事和设计总监,公司成立于2022年。设计理念注重空间与生活方式的联动,曾尝试将电梯从功能动线转变为“景观电梯”。
    设计说明 | Design Instruction
  • 本套别墅设计旨在满足三代人的居住需求,采用现代简约风格,以黑白灰色系为主,融入莫兰迪色彩,营造温馨舒适的居住环境。 空间布局上,充分考虑三代人的生活习惯。夫妻二人拥有独立的卧室,衣帽间卫生间,保障隐私。男宝和女宝的房间设计充满童趣,同时注重学习空间的打造。通过结构的改造,分别做了独立的套房。将空间进行重组,向上延伸,阁楼改建为父母安排独立层面,满足卧室,卫生间,以及储物。注重舒适与便捷,方便日常起居。 公共区域采用开放式设计,增进家庭成员间的交流互动。客厅以简洁的线条和柔和的莫兰迪色调,打造轻松氛围。餐厅与厨房相连,方便日常用餐。 地下室打造休闲娱乐区域,攀爬,篮球架,秋千等设计充分的为男宝,女宝提供了玩耍的空间。 负一楼是夫妻二人招待朋友的秘密天地,平时也可在此办公。 整体装修注重细节与品质,选用环保材料。黑白灰的基调搭配莫兰迪色彩的点缀,既时尚又不失温馨。各个功能区域合理划分,满足不同年龄段家庭成员的需求,让这个家成为三代人幸福生活的港湾。
  • 图片
  • 图片
  • 图片
  • 图片
  • 图片
  • 图片
  • 图片
  • 图片
  • 图片
  • 图片
  • 图片
  • 图片
  • 图片
  • 图片
  • 图片
  • 上一个 下一个
    2025第九届金腾奖 私宅空间 | 旅居空间 | 城市功能空间 | 人气设计师 | NEW100 jintengAWARD(小金_金腾奖组委会) 广州市海珠区琶洲大道68号华新中心21楼
    金腾奖视频号 金腾奖小红书号 监制:余佳灵
    统筹:张俊媚
    运营:赖钰炼 曹凯月 刘芳棋 小金
    新媒体:王贝贝 严洁 张文一
    技术:丁德昌
    最终解释权归金腾奖主办方所有